- Full Planning Permission Granted For 2 Bed 2 Storey Detached Bungalow
- Swale Borough Council -Ref. No: 24/504614/FULL
- Separate Own Access And Exit
- Prime Sought After Minster Location
- A Stone Throw To Shops And Amenities
- Close To The Beach And The Glen
- 2 Double Bedrooms
- Amazing Opportunity For Self Build Or Developer
- Do Not Miss One!!
Full Description
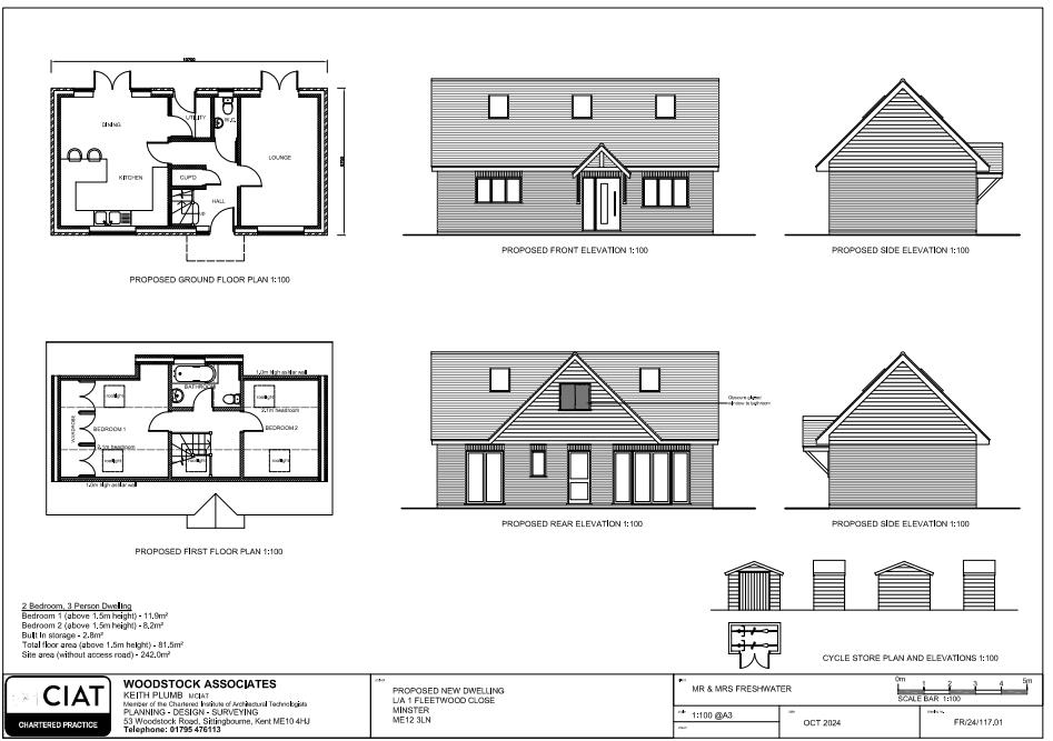
FULL PLANNING PERMISSION GRANTEDIn the sought after area of Fleetwood Close, Minster On Sea, Sheerness, this exceptional building plot presents a remarkable opportunity for both self-build enthusiasts and developers alike. With full planning permission granted for a two-bedroom, two-storey detached bungalow, this property is ready for you to bring your vision to life. The planning reference number is 24/504614/FULL, which can be easily accessed for further details.The plot is ideally situated just a stone's throw away from local shops and amenities, ensuring that everyday conveniences are within easy reach. This prime location in Minster is highly sought after, making it an attractive prospect for those looking to invest in a new home or a lucrative development project.With two double bedrooms and the potential for a spacious reception area, the planned bungalow offers a comfortable living space that can be tailored to your specific needs. The opportunity to create a bespoke home in such a charming community is rare, and this plot is not to be missed.Whether you are a first-time buyer looking to build your dream home or a seasoned developer seeking a promising project, this land offers the perfect canvas to create something truly special. Embrace the chance to design a property that reflects your personal style in a location that combines convenience with a welcoming atmosphere.James Perry do not provide advice or recommendation on planning and all enquiries should be dealt with by SBC.
Land
Access
Drawings
Viewing
Please contact us on 01795666666 / 01795667777 if you wish to arrange a viewing appointment for this property, or require further information.
Disclaimer
James Perry & Partners Limited endeavour to maintain accurate depictions of properties in Virtual Tours, Floor Plans and descriptions, however, these are intended only as a guide and purchasers must satisfy themselves by personal inspection.
Land
Access
Drawings
Viewing
Please contact us on 01795666666 / 01795667777 if you wish to arrange a viewing appointment for this property, or require further information.
Disclaimer
James Perry & Partners Limited endeavour to maintain accurate depictions of properties in Virtual Tours, Floor Plans and descriptions, however, these are intended only as a guide and purchasers must satisfy themselves by personal inspection.

