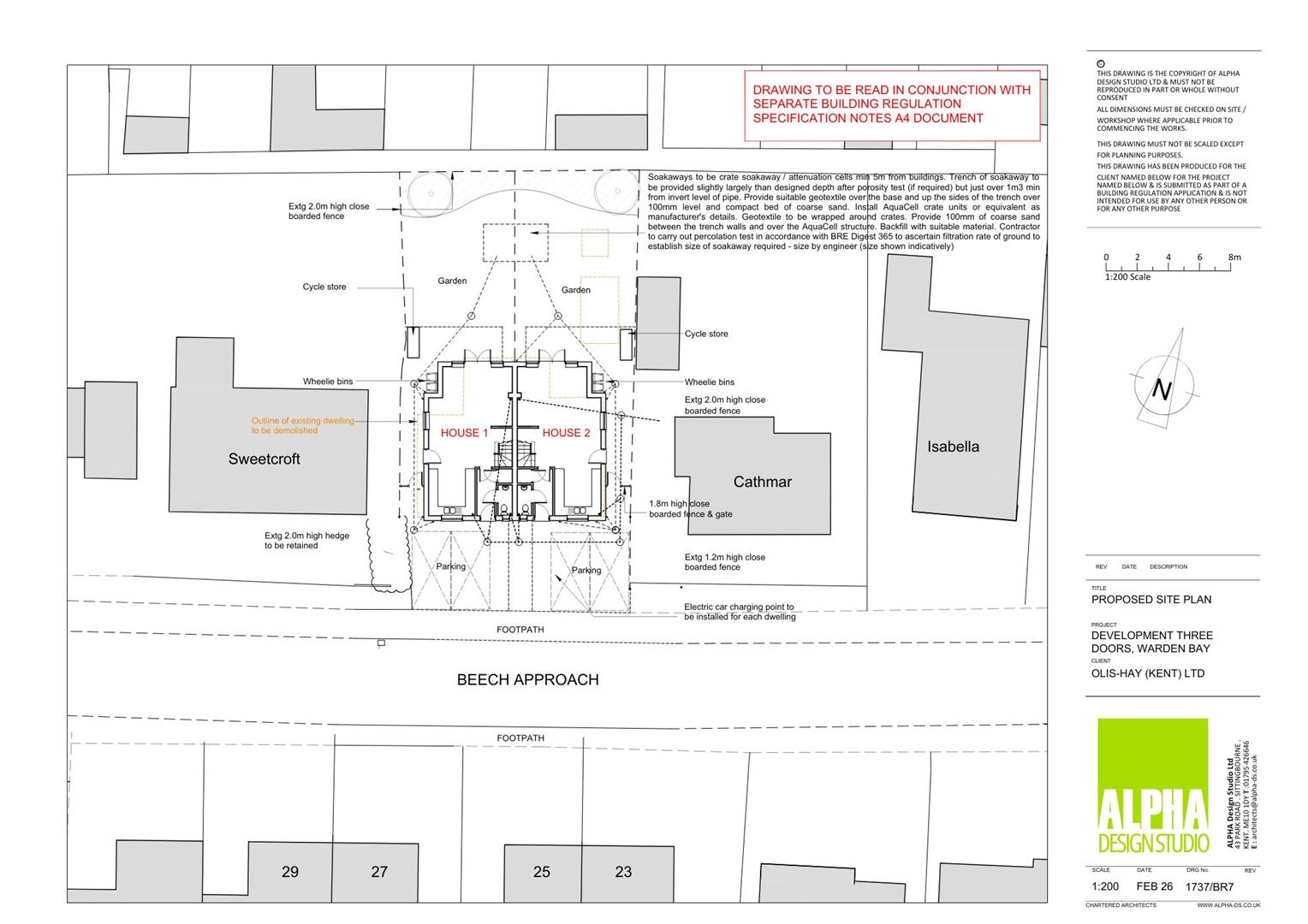
- Full Planning Permission Granted 25/503482/FULL
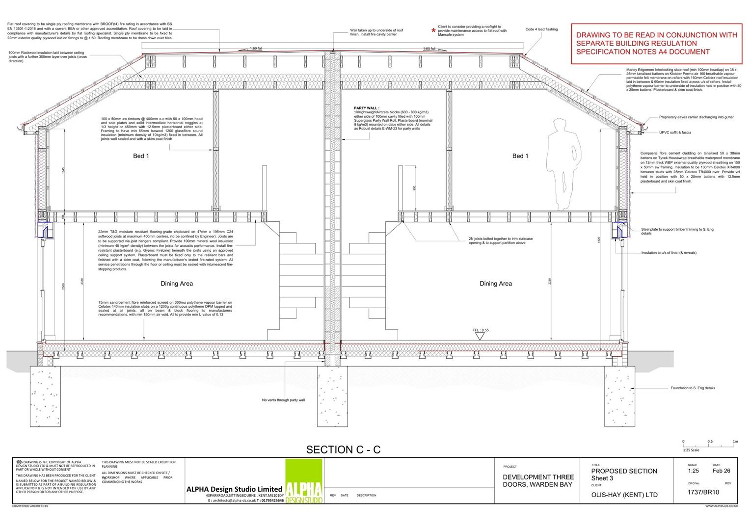
- New Build Two Three Bed Semi Detached
- In Warden Bay Near Sea
- Land Available £250,000 For Both Plots
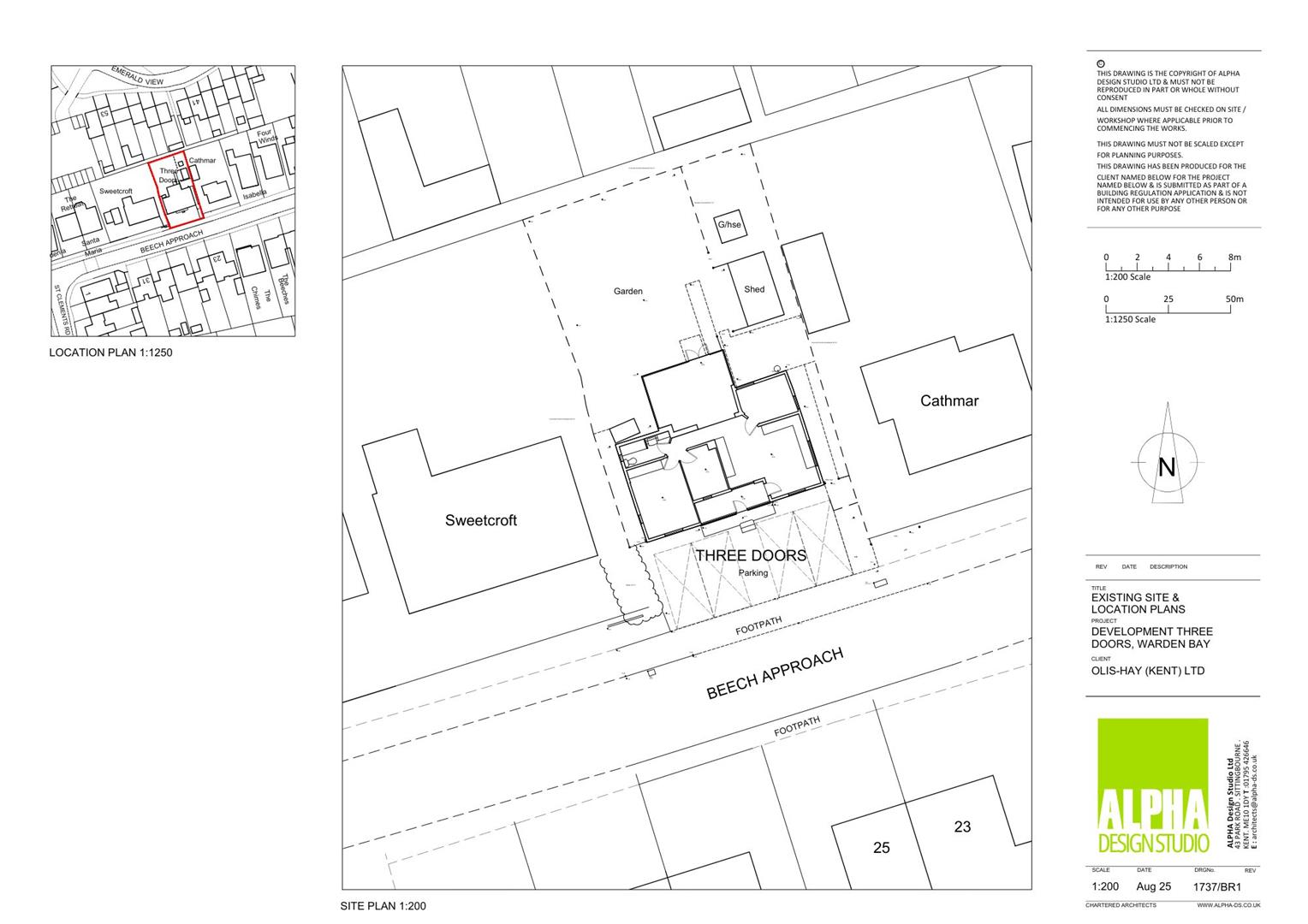
- Existing Non Traditional 2 Bed Bungalow Will Be Demolished
- Rare Opportunity Of Land With Full Planning Permission
- One Not To Be Missed
- Calling All Investors And Developers
Full Description
Both Plots £250,000 Full Planning Permission GrantedIn the charming area of Beach Approach, Warden, Sheerness, this property presents a unique opportunity for those looking to invest in a new build. Currently, the site features a non-traditional two-bedroom bungalow, which is set to be demolished, making way for exciting new developments. The property boasts full planning permission granted under reference 25/503482/FULL for the construction of two semi-detached houses, each with three bedrooms. This is an excellent chance for buyers or investors to create modern homes tailored to contemporary living standards. The existing bungalow includes two reception rooms, providing ample space for relaxation and entertainment. With one bathroom, the layout is functional, yet the real value lies in the potential for redevelopment. The land is available for £250,000 for both plots, offering a promising investment in a desirable location.Warden is known for its picturesque surroundings and proximity to the coast, making it an attractive area for families and individuals alike. This property not only offers a chance to build new homes but also to become part of a vibrant community. Whether you are looking to invest or create your dream home, this property on Beach Approach is a remarkable opportunity not to be missed.
Porch (4.6 x 1.3 (15'1" x 4'3"))
Kitchen (5.6 x 4.6 x 3.2 (18'4" x 15'1" x 10'5"))
Lounge (4.8 x 4.1 (15'8" x 13'5"))
Hallway
Bedroom 1 (4.6 x 3.4 (15'1" x 11'1"))
Bedroom 2 (3.3 x 2.5 (10'9" x 8'2"))
Dining Room (3.3 x 2.5 (10'9" x 8'2"))
Bathroom (3.4 x 1.5 (11'1" x 4'11"))
Viewing
Please contact us on 01795666666 / 01795667777 if you wish to arrange a viewing appointment for this property, or require further information.
Energy Performance Certificate
Click here to view the Energy Efficiency Rating and Environmental Impact Rating for this property.
Disclaimer
James Perry & Partners Limited endeavour to maintain accurate depictions of properties in Virtual Tours, Floor Plans and descriptions, however, these are intended only as a guide and purchasers must satisfy themselves by personal inspection.
Porch (4.6 x 1.3 (15'1" x 4'3"))
Kitchen (5.6 x 4.6 x 3.2 (18'4" x 15'1" x 10'5"))
Lounge (4.8 x 4.1 (15'8" x 13'5"))
Hallway
Bedroom 1 (4.6 x 3.4 (15'1" x 11'1"))
Bedroom 2 (3.3 x 2.5 (10'9" x 8'2"))
Dining Room (3.3 x 2.5 (10'9" x 8'2"))
Bathroom (3.4 x 1.5 (11'1" x 4'11"))
Viewing
Please contact us on 01795666666 / 01795667777 if you wish to arrange a viewing appointment for this property, or require further information.
Energy Performance Certificate
Click here to view the Energy Efficiency Rating and Environmental Impact Rating for this property.
Disclaimer
James Perry & Partners Limited endeavour to maintain accurate depictions of properties in Virtual Tours, Floor Plans and descriptions, however, these are intended only as a guide and purchasers must satisfy themselves by personal inspection.

